borang pindah rumah

22 No Kad Pengenalan. Boleh didapati secara online melalui Pekeliling Perbendaharaan Malaysia WP 12.


Rizzna Property Elaun Pindah Rumah Bagi Kakitangan Awam Facebook

Menyediakan dan mendaftarkan penarikan kaveat.

. Semua permohonan Pindah Milik Tanah hendaklah menyertakan maklumat dokumen berikut. Keunggulan dan Kekurangan menggunakan Jasa Pindahan Rumah. BORANG PERMOHONAN PINDAH MILIK TANAH BORANG A A.

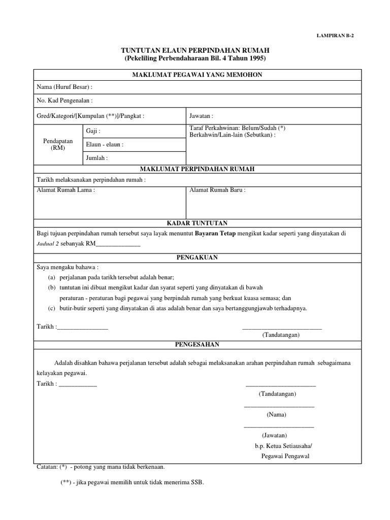
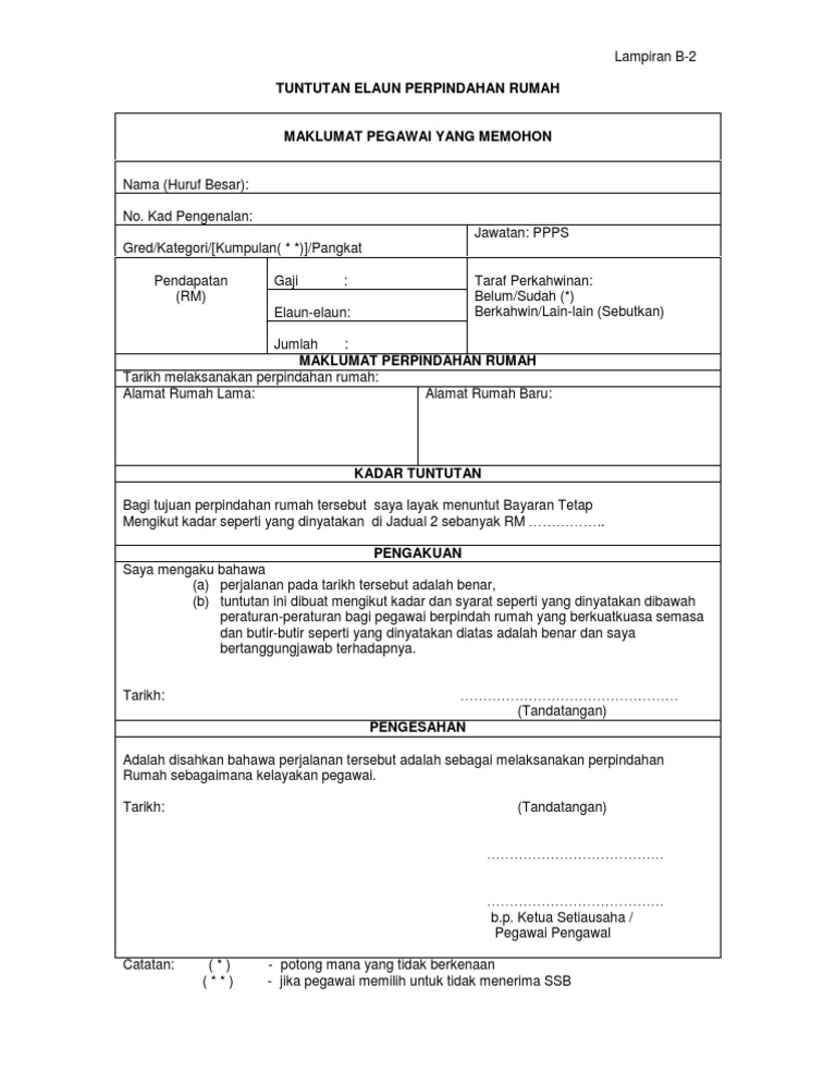
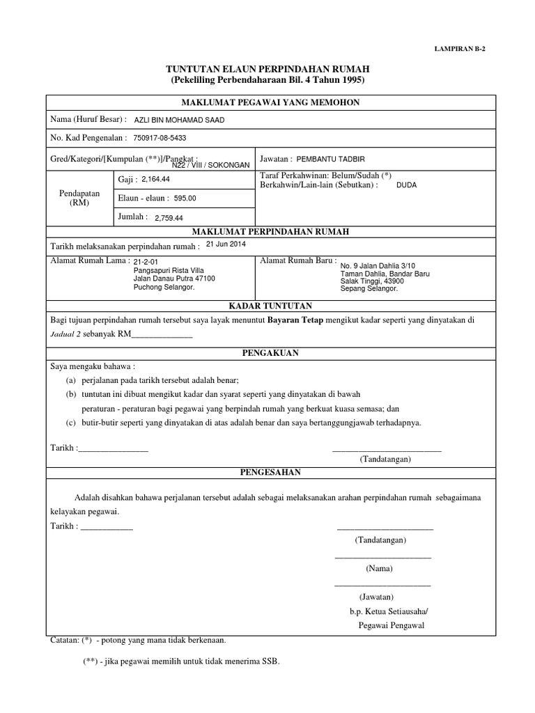
TUKAR NAMA TANAH. Jarak rumah baru ke pejabat. Borang Tuntutan Elaun Pindah Rumah WP 12 Lampiran B-2 tuntutan elaun perpindahan rumah hendaklah dikemukakan kepada Ketua Jabatan di dalam tempoh tidak lewat daripada 3 bulan selepas tarikh perpindahan rumah dilakukan Surat Pengesahan Alamat Rumah yang dibeli di bawah Skim Pinjaman Perumahan.

Borang Tuntutan Elaun Perpindahan Rumah Hot. Powered by Phoca Download. Perpindahan yang tak melibatkan perbelanjaan pengangkutan.

PEMILIK 21 Nama Penuh. Borang Tuntutan Elaun Pindah Rumah Penjawat Awam. Tata Cara Pindah Rumah dan Tiga Waktu Baiknya.

PERMOHONAN PINDAH MILIK TANAH DOKUMEN DOKUMEN Bagi Bahagian Penaksiran A. TheLorry is a leading technology-empowered logistics platform. Borang 14A Pemindahan Hak Milik ditandatangani oleh pembeli Langkah 3.

25 Nama Majikan Alamat. Borang yang lengkap hendaklah ditandatangani dengan tandatangan asal Pemindah milikPenerima milik. Rumah dan Nama Projek.

Antara syarat permohonan untuk membuat tuntutan Elaun Pindah Rumah melalui LPPSA ialah. Bagi tujuan perpindahan rumah tersebut saya layak menuntut Bayaran Tetap mengikut kadar seperti yang dinyatakan di Jadual 2 sebanyak RM _____. Borang 14A Pemindahan Hak Milik ditandatangani oleh pemaju.

2 keping Borang Asal A dan B 2 keping Borang Salinan A dan B 2 keping salinan Kad Pengenalan atau Surat Beranak bagi anak dibawah umur 12 tahun bagi Penerima Pembeli 2. Ttuntutan elaun perpindahan rumah hendaklah dikemukakan kepada Ketua Jabatan di dalam tempoh tidak lewat daripada 3 bulan selepas tarikh perpindahan rumah. Semua permohonan Pindah Milik Tanah hendaklah menyertakan maklumat dokumen berikut.

Tuntutan Elaun Perpindahan Rumah Mengikut Surat P ekeliling Perkhidmatan Bil 101989 Pekeliling Perkhidmatan Bil 91991 Dan Pekeliling Perbendaharaan Bil 41995 Meruiuk kepada. Borang Pindah Milik boleh dimuat turun di laman sesawang Jabatan Tanah. Moshims Borang Pindah Rumah Jpa Otosection Merizabkan Tanah Kerajaan Untuk Rumah Ibadah Selain Islam RISI.

PERMOHONAN PINDAH MILIK TANAH DOKUMEN DOKUMEN Bagi Bahagian Penilaian A. Menyiapkan dan mendaftarkan borang kaveat persendirian Borang 19B bersama-sama dengan pernyataan sah Penjual. BUTIR-BUTIR KETERANGAN PEMINDAH MILIK PENJUAL.

A Nama Pemindah Milik Penjual mengikut Kad. 322 Berpindah Rumah 3221 Pegawai yang Bertukar ke luar Kawasan Pejabat dan berpindah rumah dengan syarat Pegawai mendiami rumah tersebut adalah layak menuntut Elaun. Tuntutan perlu dibuat menggunakan borang ini.

Pemaju akan memberi satu borang kecacatan yang perlu diisi oleh tuan rumah selesan diserahkan kunci rumah. Jarak rumah lama ke pejabat. CARA ATAU PROSEDUR SERTA KOS PINDAH PEMILIK GERAN DAN DOWNLOAD BORANG ONLINE 2022.

Turunmilik Akibat Kematian Borang T 000. Borang hendaklah ditulis dan ditandatangani dengan pen dakwat basah berwarna hitam atau ditaip dengan jelas dan terang. MAKLUMAT PERPINDAHAN RUMAH Tarikh Melaksanakan Perpindahan rumah.

Untuk makluman anda sekiranya anda ingin. - - 23 Tempat Lahir. Seperti di Lampiran B.

Polisi Keselamatan Penafian Peta Laman. Tuntutan hendaklah dibuat dengan menggunakan borang. Tidak lagi repot jasa pindahan rumah.

We provide logistics services from moving cross-border relocation trucking linehaul distribution and bulky item delivery. Borang Tuntutan Elaun Perpindahan. Borang ini akan menyatakan tentang kecacatan yang.

Kakitangan tersebut perlulah mendiami rumah tersebut. Bagi Permohonan Pindah Milik Tanah Rizab Melayu Borang.


Cara Mohon Elaun Pindah Rumah Penjawat Awam Beli Rumah Lppsa


Borang Tuntutan Elaun Pindah Rumah Pdf


Borang Permohonan Tuntutan Elaun Pindah Rumah Jabatan


Borang Tuntutan Elaun Perpindahan Rumah Pdf


Beautiful Life Tuntutan Elaun Perpindahan Rumah


Bagaimana Guru Membuat Tuntutan Pindah Rumah


Borang Tuntutan Pindah B Pdf


Cara Mohon Elaun Pindah Rumah Penjawat Awam Beli Rumah Lppsa


Borang Pindah Rumah Pdf


Borang Tuntutan Elaun Perpindahan Rumah Pdf


Cara Mohon Elaun Pindah Rumah Penjawat Awam Beli Rumah Lppsa


Borang Tunt Perpindahan Rumah Pdf


Borang Pindah Rumah Pdf


Moshims Borang Pindah Rumah Jpa Otosection


Cara Mohon Elaun Pindah Rumah Penjawat Awam Beli Rumah Lppsa


Borang Tuntutan Elaun Perpindahan Rumah Pdf


Kelebihan Elaun Pindah Rumah Untuk Kakitangan Kerajaan


Cara Tuntut Elaun Pindah Rumah Beli Guna Lppsa Jomsimpan


Cara Mohon Elaun Pindah Rumah Penjawat Awam Beli Rumah Lppsa Pindah Rumah Rumah

Iklan Atas Artikel

Iklan Tengah Artikel 1